Chaufferie Huet de la Madeleine
Description
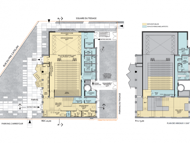
L’usine Huet, spécialisée dans le tissage de toiles damassées, dans la blanchisserie et dans la teinturerie, animait la vie des quartiers Madeleinois au bord de la Deûle tout au long du XXe siècle.
Aujourd’hui, l’ancienne chaufferie est le dernier vestige réduit de ce vaste complexe industriel disparu. La transformation de l’ancienne Chaufferie, témoin en péril, est une opportunité de récupération du patrimoine de la ville de la Madeleine. Sa cheminée, ses façades en briques rouges et blanches, ses poutres métalliques en treillis, ses cuves à fioul, son pont roulant, sa demi-rosette à soleil levant et son profil bâti unique sont matière intéressante pour la valorisation de la mémoire industrielle de la ville.
Vous avez un projet de reconversion ? Faites confiance aux équipes de l'agence d'architecture Nathalie T'KINT, spécialisée dans l'architecture patrimoniale. Vous pouvez les contacter au 03 28 36 24 08 ou par ce formulaire de contact.
État du projet
Livré en 2019
Maîtrise d'ouvrage
Ville de la Madeleine
Budget hors taxes
3 750 000 € HT




